Kaiser Holzbau – Referenzen – Doppelhaus in Straubing
Doppelhaus in Straubing
Dieses zeitgemäße Doppelhaus vereint modernes Design mit ökologischer Bauweise und schafft zwei hochwertige Wohneinheiten unter einem Dach. Der äußere Aufbau kombiniert eine verputzte Erdgeschossfassade mit einer ansprechenden Holzverkleidung im Obergeschoss – ein harmonisches Zusammenspiel aus Natürlichkeit und Klarheit.
Großzügige bodentiefe Fenster im Erd- und Obergeschoss lassen viel Tageslicht in die Räume und schaffen helle, offene Wohnbereiche mit Blick ins Grüne. Der fließende Übergang von innen nach außen sorgt für ein luftiges Raumgefühl und ein besonderes Wohnambiente.
Gefertigt wurde das Gebäude in nachhaltiger Holzständerbauweise durch das Team von Kaiser Holzbau – mit hoher Präzision, effizienter Vorfertigung und handwerklichem Anspruch. Die Holzbauweise trägt nicht nur zur Energieeffizienz bei, sondern auch zu einem angenehmen und gesunden Wohnklima.
Highlights

Ort
Straubing

Objekttyp
Doppelhaus

Wohnfläche
Je 180 m²

Besonderheiten
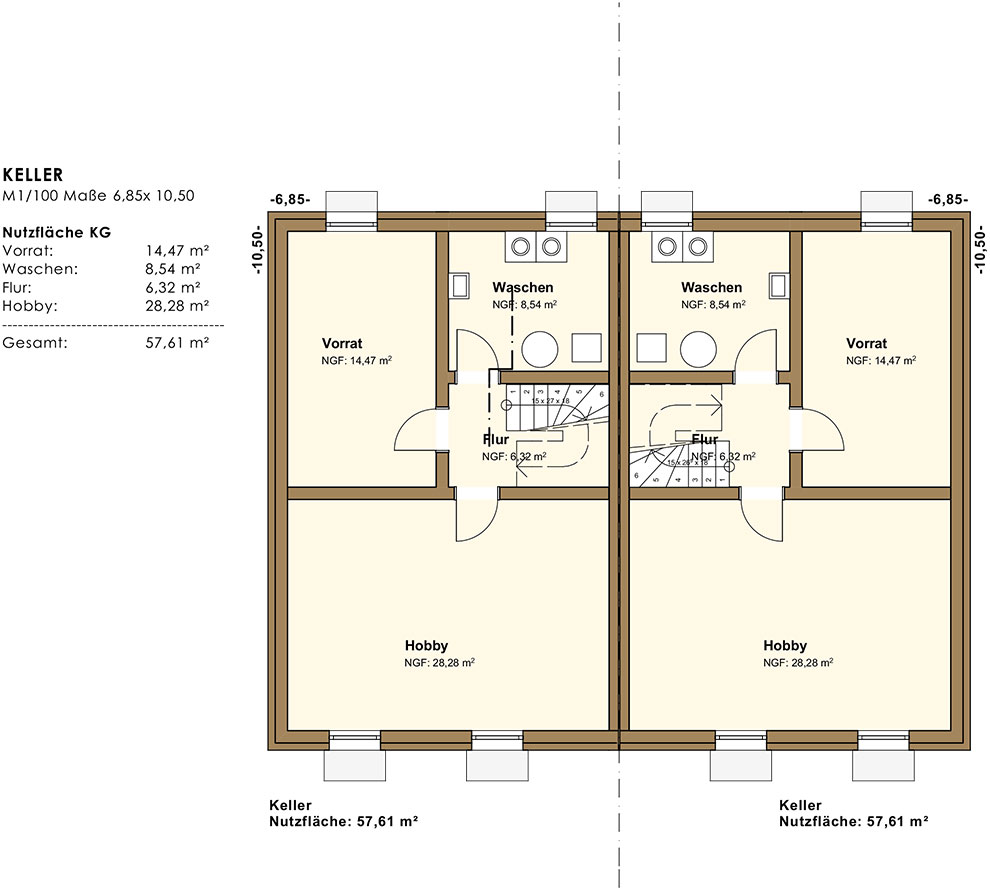
Bodentiefe Fenster, Keller






